3世帯大家族から自宅兼賃貸(オーナー住まい+2世帯賃貸)時代に合わせて活用
【若狭3丁目】 【商業地域】 駐車場4~5台可能🚗
那覇中学校迄徒歩4分🏫 アパート経営や共同住宅に♪
| 物件番号 | B25-09 | ||
|---|---|---|---|
| 所在地 | 沖縄県那覇市若狭3丁目 | ||
| 価格 | 1億1,000万円 | ||
| 交通アクセス | バス 徒歩2分(若狭) | ||
| 種別 | |||
| 土地面積 | 118.92m²(35.97)坪 | 建物面積 | 254.78m²(77.07)坪 |
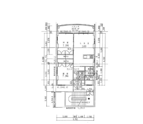
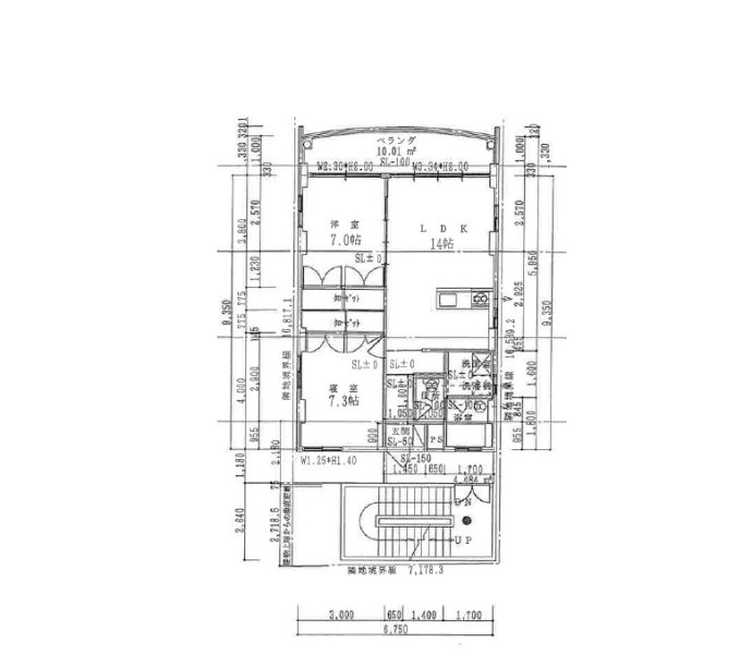
| 地目 | 宅地 | 間取 | 4~5階は一体型ペントハウス5LDK |
| 建ぺい率 | 80% | 容積率 | 400% |
| 階建 | 築年月 | 2000/02 | |
| 用途地域 | 商業 | 駐車場 | 空有 駐車場台数4~5台可 |
| 都市計画 | 市街化調整区域 | 総戸数 | |
| 接道状況(1) | 北西側、7mの公道に7m接道 | ||
| 接道状況(2) | |||
| 私道負担 | 建物構造 | RC | |
| 土地の権利 | 所有権 | 現況 | 古屋あり |
| 固定資産税 | 入居状況 | ||
| 引き渡し予定日 | 相談 | 満室時賃料収入 | |
| 取引態様 | 専任 | 現在賃料収入 | |
| 特記事項 | ●物件名:那覇市若狭3丁目(共同住宅) ●所在地:那覇市若狭3丁目1番6 ●価格:1億1,000万円 ●土地面積:118.92㎡/35.97坪 ●土地権利:所有権 ●土地地目:宅地 ●都市計画:市街化区域 ●用途地域:商業地域(準防火地域) ●建蔽率:80% ●容積率:400% ●延床面積:254.78㎡/77.07坪 ●建物構造:鉄筋コンクリート造陸屋根高床式4階建 ●建築年月:2000年2月 ●現況:居住中(内覧要予約) ●間取り: ・2階(2LDK) ・3階(2LDK) ・4~5階(5LDK)(一体型ペントハウス) ●道路幅員:約7m(1項1号) ●道路間口:約7m ●駐車場台数:4~5台可 ●バス停:「若狭」 徒歩約2分 ●モノレール:「美栄橋」 徒歩約11分 ●若狭小学校 徒歩約5分 ●那覇中学校 徒歩約4分 ●津波警戒区域 ●引き渡し時期:相談 ●設備:上水道、下水道 ●固定資産税:294,958円(令和7年度) ●仲介手数料:3,696,000円(税込み) ●取り扱い不動産会社:オロク商会 |
||
| 設備・条件 | 事務所可 ペット可能 給湯 トイレ専用 バス・トイレ別 公営水道 排水下水 駐車場有 駐輪場 バイク置き場 フローリング 二世帯住宅 | ||

担当者 石川 千鶴お互いに、寄り添う気持ちを大切にしています。 不動産の 第一の アドバイザーとして 、 しっかりと サポート させていただきます 。 貴方のお電話、心よりお待ちしております 。